The steel panel radiators TM KOER are suitable for use in both individual and central one-pipe and two-pipe closed heating systems. Water and non-freezing liquids with a pH of 8 to 9.5 and an operating pressure up to 10 atm can be used as the heat transfer medium. Oxygen content not more than 20 μg/l, suspended solids not more than 5 mg/l, total hardness not more than 7 mg-eq/l and maximum temperature 110 ℃.
Radiators are certified and meet all international standards: EN 442-1:2015 (EU), DSTU B B.2.5-3-95 (Ukraine), GOST 31311-2005 (Russian Federation).
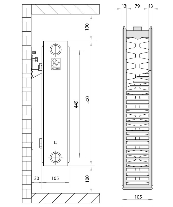
| Height, mm | 300 | 500 |
| Steel thickness, mm | 1,25 | |
| Enamelling colour | white (RAL 9016) | |
| Connection thread, inch | 1/2″ (female) | |
| Centre distance, mm | 249 | 449 |
| Heat output (∆T=50℃), W | 900 | 1452 |
| Indicator, n | 1,29 | 1,31 |
| Inlet connection temperature, ℃ | 75 | |
| Outlet temperature, ℃ | 65 | |
| Room temperature, ℃ | 20 | |
| ÞT, ℃ | 50 | |
| Article | Size HxL, mm | Water volume, l | Heat output, W | Weight, kg (±5%) |
| 22×300×400.S | 300×400 | 1,44 | 510 | 7,70 |
| 22×300×500.S | 300×500 | 1,80 | 638 | 9,29 |
| 22×300×600.S | 300×600 | 2,16 | 766 | 10,87 |
| 22×300×700.S | 300×700 | 2,52 | 893 | 12,46 |
| 22×300×800.S | 300×800 | 2,88 | 1021 | 14,05 |
| 22×300×900.S | 300×900 | 3,24 | 1148 | 15,63 |
| 22×300×1000.S | 300×1000 | 3,60 | 1276 | 17,22 |
| 22×300×1100.S | 300×1100 | 3,96 | 1404 | 18,81 |
| 22×300×1200.S | 300×1200 | 4,32 | 1531 | 20,39 |
| 22×300×1300.S | 300×1300 | 4,68 | 1659 | 21,98 |
| 22×300×1400.S | 300×1400 | 5,04 | 1786 | 23,56 |
| 22×300×1500.S | 300×1500 | 5,40 | 1914 | 25,15 |
| 22×300×1600.S | 300×1600 | 5,76 | 2042 | 26,73 |
| 22×300×1800.S | 300×1800 | 6,48 | 2297 | 29,90 |
| 22×300×2000.S | 300×2000 | 7,02 | 2552 | 34,54 |
Models with 500 mm height
| Article | Size HxL, mm | Water volume, l | Heat output, W | Weight, kg (±5%) |
| 22×500×400.S | 500×400 | 2,16 | 772 | 12,00 |
| 22×500×500.S | 500×500 | 2,70 | 965 | 14,80 |
| 22×500×600.S | 500×600 | 3,24 | 1158 | 17,60 |
| 22×500×700.S | 500×700 | 3,78 | 1351 | 20,40 |
| 22×500×800.S | 500×800 | 4,32 | 1544 | 23,20 |
| 22×500×900.S | 500×900 | 4,86 | 1737 | 26,00 |
| 22×500×1000.S | 500×1000 | 5,40 | 1930 | 28,80 |
| 22×500×1100.S | 500×1100 | 5,94 | 2123 | 31,50 |
| 22×500×1200.S | 500×1200 | 6,48 | 2316 | 34,30 |
| 22×500×1300.S | 500×1300 | 7,02 | 2509 | 36,68 |
| 22×500×1400.S | 500×1400 | 7,56 | 2702 | 39,90 |
| 22×500×1500.S | 500×1500 | 8,10 | 2895 | 42,70 |
| 22×500×1600.S | 500×1600 | 8,64 | 3088 | 45,50 |
| 22×500×1800.S | 500×1800 | 9,72 | 3474 | 51,10 |
| 22×500×2000.S | 500×2000 | 10,80 | 3860 | 56,70 |

